杆式蒙古包体系
乌兰哈达火山無热宇宙草原新宿

乌兰哈达火山地质公园位于内蒙古自治区乌兰察布市察哈尔右翼后旗乌兰哈达苏木境内。公园内集聚了草原火山群、熔岩地貌及堰塞湖景观等,被誉为天然的“火山博物馆”,是一处极具特色的自然景观。项目位于乌兰哈达火山地质公园北侧牧民住房院内,由客房、餐厅、咖啡厅、接待中心及服务用房组成,为游客提供住宿、餐食、休闲、娱乐等服务。


建筑采用分散式布局方式,整体打散为七栋,住宿五栋,餐饮一栋,接待中心一栋,有效减弱了体量,保持与牧户住房的协调性,同时增加了游客体验自然的机会。


< 项目效果图 >

◎ 住宿区——杆式蒙古包衍生的住居空间

提炼传统蒙古包的建造智慧,结合草原文旅的现代需求和在地资源,设计研发了适用于草原文旅的绿色建筑体系——杆式蒙古包。该体系有传统蒙古包的穹顶空间特性,也满足了现代生活空间的物理性能,同时根据不同的需求自由组合、重组出多样的弹性空间。


设计中注重在地自然景观的互动性和体验性,建筑的布局、开窗与自然环境高度匹配,同时采用符合结构模数的门窗体系等,满足了结构、构件、材料的最优模数适配。体系系统地解决了草原建筑的文化传承、品质提升等问题,改善草原旅居环境。

< 住宿区爆炸图 >

< 住宿区平面图 >
◎ 餐饮区——杆式蒙古包衍生的公共空间


项目有效地利用杆式蒙古包体系的建造逻辑与装配适宜技术,塑造了长方形的公共空间。为了应对气候特征,采用交叉双坡屋顶,设置高侧窗,确保了通风、排水、排雪的功能。

材料选用集成木和火烧木、火山石等在地环保材料和可循环利用材料,减少了能源消耗,降低了建筑材料成本和运输成本。装配适宜技术缩短施工周期,降低施工成本,同时确保了空间品质和保温隔热性能,提高建筑的能源利用效率。


< 餐饮区建造过程 >
◎ 接待区——原有羊圈改造的服务空间

原有牧户的羊圈进行改造,保留了原有的布局和体量,加固结构并增设了保温、供暖等,提升了房屋的物理性能与品质,为整个民宿区提供接待、厨房、卫浴等服用功能。

设计研发出适宜在地文化、自然环境、当代需求的新型建筑体系,力争实现对环境友好、低碳、可持续发展的草原文旅社区,提高草原旅居环境品质。

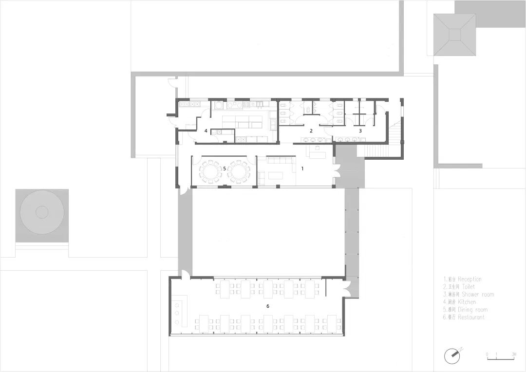
< 接待中心+餐厅平面图 >
项目名称:杆式蒙古包体系——乌兰哈达火山無热宇宙草原新宿
项目地点:内蒙古乌兰察布市察哈尔右翼后旗
设计单位:阁尔建筑
建设单位:海南百新途投资有限公司
设计时间:2024年1月
建成时间:2024年7月
摄 影 师:窦俞钧
现代蒙古包装置——無热凉亭

本项目位于内蒙古乌兰哈达火山群旁,旨在通过蒙古包装置建立厚重的地质景观与柔性的游牧空间之间的对话。火山象征着大地的原始力量,而蒙古包则代表了人类对自然的适应性回应,二者的碰撞将产生独特的空间叙事。

< 场地区位图 >
本设计以蒙古包为原型,探索了传统游牧文化与现代建筑语言的创造性转译。通过分析场地特征、文化转译策略及空间体验设计,呈现三者的有机融合,为草原人居环境提供新的思考路径。


乌兰哈达火山锥体的几何形态与蒙古包的剖面曲线具有拓扑相似性。通过对火山形体与蒙古包形态的几何抽离与重组,使装置成为地质景观的微观映射,同时赋予传统蒙古包新的空间表达。


< 通风示意图 >
本设计深入挖掘蒙古包的生态适应性特征,解析其应对严酷气候的被动式调节系统,并将其转译为装置空间要素。通过上下预留洞口引导微气流,使空间保持舒适性。


基于空间形态的几何设计,选用彩色亚克力与深色亚克力进行交错布置。从而让装置空间随着自然光线的变化和云层的移动,呈现不同的色彩组合的动态投影。使装置超越静态空间的范畴,成为具有"呼吸感"的有机体。


本设计通过蒙古包的空间转译,不仅提供了特定场地的建筑解决方案,更探索了一种"游牧性"的设计思维:即在动态环境中创造适应性空间。这种源自游牧文明的弹性空间智慧,或许能为未来建筑提供重要启示。

< 建造逻辑 >
项目名称:现代蒙古包装置——無热凉亭
项目地点:内蒙古乌兰哈达火山無热宇宙草原新宿
设计单位:阁尔建筑
建设单位:海南百新途投资有限公司
设计时间:2024年3月
建成时间:2024年6月
摄 影 师:窦俞钧


阁尔建筑是一家专注于乡建、文旅、保障住房领域的创新型建筑科技企业,致力于提供高品质、高性能、高科技的装配式建筑解决方案。以装配式建筑为市场切入点,將前沿设计、高新技术,人工智能和人文文化有机结合,为客户提供策划、设计、生产、安装全流程一体化服务。通过在多村文旅市场的实践与探索,为多村人居环境的可持维发展注入新动。未来,阁尔建筑将以设计+科技为驱动,以人文为内核,推动人居的可持续发展。
本文内容由设计公司授权发布
图片版权归原作者所有
YOU设计编辑发布
投稿邮箱:you-design@qq.com
关注我们
Follow US





· 关注YOU设计 ·
关于我们
About US
「YOU设计」平台创立于2018年,垂直深耕,跨界共创,以品牌营销咨询、项目策划执行、短视频运营、产业链资源对接为核心服务,用好内容助力品牌价值最大化。
核心自有品牌项目:DFY(Design For Young)设计论坛、“圳在设计”短视频栏目、“圳在好好生活”短视频栏目。
























蒙公网安备15052402000126号


发表评论